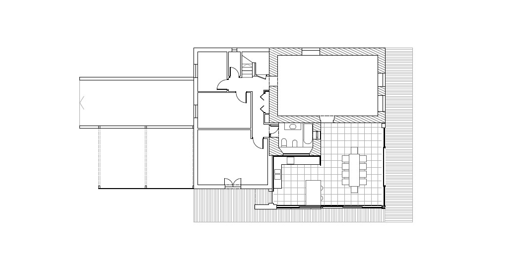
Les commanditaires du projet souhaitaient étendre leur espace domestique avec un espace de convivialité tourné vers l’extérieur. Il a donc été formalisé par un volume simple et largement vitré abritant une grande cuisine familiale. Traitée en dicotomie avec la maison existante traditionnelle de façon légère, en bois habillé de feuille de zinc.
Maîtrise d’ouvrage
Privé
Programme
Extension maison
Lieu
Plélan-le-petit (22)
Mission : Complète / Réalisation : 2015
Budget : 140.000 €
Autres projets
![]() |
Réalisé |
![]() |
Réalisé |
![]() |
Réalisé |
![]() |
Réalisé |
![]() |
Etude + Chantier |
![]() |
Réalisé |
![]() |
Réalisé |
![]() |
Réalisé |
![]() |
Réalisé |
![]() |
Concours |
![]() |
Réalisé |
![]() |
Réalisé |
![]() |
Réalisé |
![]() |
Réalisé |
![]() |
Réalisé |
![]() |
Réalisé |
![]() |
Réalisé |
![]() |
Réalisé |
![]() |
Concours |
![]() |
Concours |
![]() |
Concours |
![]() |
Concours |






















